top of page
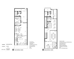
TWG the watches gallery - a nearly 20 years company in Johor Bahru , our concept are Corporate Contemporary , combined fabric , wood , natural stone elements to provide different visualization & environment . For showing precise professional of TWG , watch's engineer drawing are design for wall of display area & conference room
![]() | ![]() | ![]() | ![]() | ![]() | ![]() | ![]() |
|---|---|---|---|---|---|---|
![]() | ![]() | ![]() | ![]() |
bottom of page










